Gallery page

The following images are a random selection of projects undertaken by Agathoclis Beckmann Ltd.

Private garden, Lymm, Cheshire
The project involved an extensive planting scheme to screen a new boundary wall.
Private garden, Lymm, Cheshire.
Elevations to a proposed boundary wall to reduce traffic noise.
Private garden, Lymm, Cheshire
Transplanting a semi-mature palm tree.
Private garden, Southern Greece.
Sketch proposal for a circular fountain feature as a terminus for a formal Italianate garden.
Private garden, Southern Greece.
Sketch proposal for a belvedere at the side of the garden.
Private garden, Southern Greece.
Semi-circular steps to a lower level in the garden.
Private garden, Southern Greece.
Fountain feature based on a fountain seen in the Alhambra.
Private garden, Stockport, Cheshire.
Masterplan for the garden.
Private garden, Stockport, Cheshire.
View of the walled rear garden under construction.
Private garden, Stockport, Cheshire.
View of the walled garden and pergola following construction.
The Eco-Centre, Wellacre Academy, Urmston, Trafford.
View of two of the three greenhouses following construction.
The Eco-Centre, Wellacre Academy, Urmston, Trafford.
View of bee hives in an area of wildflower seeding.
The Eco-Centre, Wellacre Academy, Urmston, Trafford.
Landscape Masterplan.
Preliminary sketch layout for a central elevated courtyard.
Alexander Court, Manchester (not implemented)
Sketch layout for a central elevated courtyard.
Alexander Court, Manchester (not implemented)
Sketch layout for a central elevated courtyard.
Alexander Court, Manchester (not implemented)
Preliminary sketch layout for a central elevated courtyard.
Alexander Court, Manchester (not implemented)
Works on site to the rear garden.
Private garden design, Cheshire.
Works on site to the rear garden.
Private garden design, Cheshire.
Works on site to the rear garden.
Private garden design, Cheshire.
Sketch Plan Option1
Private garden design, Cheshire.
Sketch Plan Option 2
Private garden design, Cheshire.
Sketch Plan Option 3.
Private garden design, Cheshire.
View of former Workhouse, Watling Street Road, Preston.
Recreation of Victorian garden for patient benefit.
Plan of the garden c. 1870.
Recreation of Victorian garden for patient benefit.
Proposed garden restoration.
Recreation of Victorian garden for patient benefit.
Sketch landscape layout to canal basin.
Measham Wharf, Measham, development around a restored canal basin.
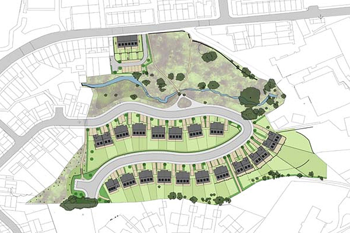
Sketch landscape layout to a housing scheme.
Proposed housing at Mossley, Tameside.
Private garden design, Macclesfield
Nearing completion on a Japanese-style garden.
Landscape Types map
Landscape Character Assessment for Warrington Borough Council
Landscape Types map
Landscape Character Assessment for Warrington Borough Council
Red Bank battlefield site
Landscape Character Assessment for Warrington Borough Council
Onion Farm
Japanese Garden
Onion Farm
Japanese Garden
Grimsby as part of a Visual Impact Assessment
Photomontage of a proposed wind turbine.
Grimsby as part of a Visual Impact Assessment
Wind turbine at Grimsby, subject of a Visual Impact Assessment.
Lymm
Sketch design for a stable and paddocks etc.
Golf course at Cuerdley, Warrington.
Planting design for a golf course at Cuerdley, Warrington.
Golf course at Cuerdley, Warrington.
Planting design for a golf course at Cuerdley, Warrington.
Playing fields near Preston
A landscape design layout for playing fields near Preston.